Dagmar Šimonová | Čtvrtek, 20. únor 2014 |
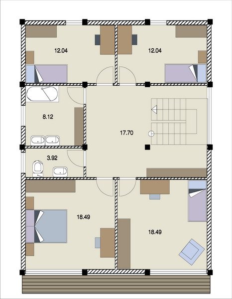
Projekt Artic Frame od společnosti Eco HOLZHAUS, s.r.o. je univerzální kolekce domů s rámovou nosnou konstrukcí z lepených masivních hranolů s vysokou odolností a životností. Veškeré konstrukční díly se vyrábí ze severského dřeva, které má vysokou pevnost a hustotu ca. 540 kg/m2. Moderních dřevěné domy této kolekce nabízejí velké otevřené prosklené plochy s nádherným výhledem do přírody.
Firma Eco HOLZHAUS s.r.o. je společným podnikem české firmy EURONOVA s.r.o. a italské firmy DALARI s.r.l., jejichž spolupráce trvá již od 90. let 20. století a začala ve fázi realizace developerských projektů a obchodů s nemovitostmi. Od roku 2013 jsme autorizovaným prodejcem staveb finské společnosti Artichouse, z jejichž projektů je právě prezentovaný Artic Frame, a ruské společnosti KLM-Art pro ČR a Německo.
Více informací najdete na www.ecoholzhaus.cz
Projekty a realizace dřevostaveb
Více projektů a realizací dřevostaveb od vybraných výrobců a dodavatelů dřevostaveb najdete v sekci Projekty a realizace dřevostaveb. Můžete vybírat z obrázkového zobrazení nebo vyhledat projekt podle zadaných parametrů. Při realizaci vašeho nového domu se vám bude hodit i náš Adresář firem pro stavbu a vybavení - zde, jehož tištěnou verzi - Adresář výrobců a dodavatelů dřevostaveb si můžete ZDARMA objednat na Tato emailová adresa je chráněna před spamboty, abyste ji viděli, povolte JavaScript .
Vaše komentáře (0)
Nejnovější články v kategorii “Vybíráme z adresáře”
-
Veletrh IZOTERM 2016 řeší aktuální téma
Společnost TERINVEST připravuje veletržní specialitu IZOTERM 2016, strategicky zacílenou na termoizolace, zateplování, opláštění a snižování energetické náročnosti budov.
-
Dřevostavba z adresáře: LaCasa GENERATION X
Dvougenerační rodinný dům Generation X od společnosti FischerHaus splňuje nejnáročnější požadavky na moderní, prestižní bydlení v domě s nadčasovým designem. Na první pohled…
-
FIRMA z adresáře: ARCHCON atelier, s.r.o.
Společnost ARCHCON atelier nabízí architektonické a projektové služby v oboru pasivních a nízkoenergetických dřevostaveb pro bydlení a občanskou vybavenost.Těžiště tvorby tvoří…
-
Nové studie ORIGIS: jedinečné jako vy
V Origisu nejdříve ze všeho mluvíte vy. Podělíte se o své zvyky, potřeby a představy ideálního bydlení. Na základě vašich specifických požadavků pak vznikne nová studie, ušitá na…



