Dřevostavba na klíč jako jednoduchou formou, s využitím přírodních materiálů, dřevo jako princip, vše skryto mezi kmeny stromů.
Projekt - do lesa - dřevostavba na klíč
Dodavatel:
WOLF SYSTEM spol. s r.o
Parametry projektu Projekt - do lesa - dřevostavba na klíč
| Společnost | WOLF SYSTEM spol. s r.o. |
| Charakteristika domu | samostatný |
| Počet podlaží | Vícepodlažní |
| Generačnost | Jednogenerační |
| Konstrukční systém | Panelový |
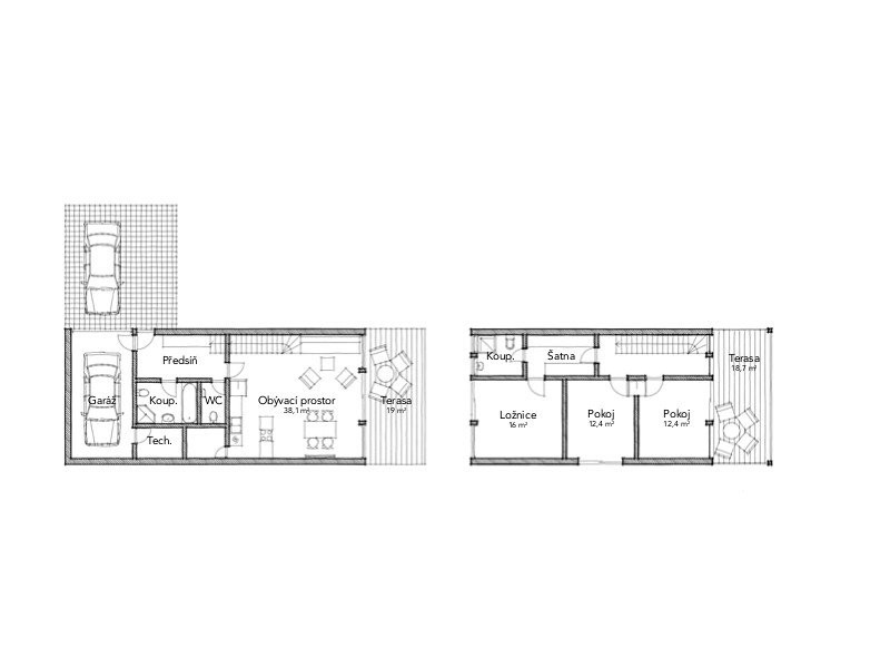
| Podlahová plocha (užitná) | 120 |
| Zastavěná plocha | 95 |
| Dispozice | 4+kk/4+1 |
| Cena hrubé stavby (vč. DPH) | 2 577 000 |
| Cena dřevostavby na klíč (vč. DPH) | 4 074 000 |



Čerstvé novinky ze světa dřevostaveb