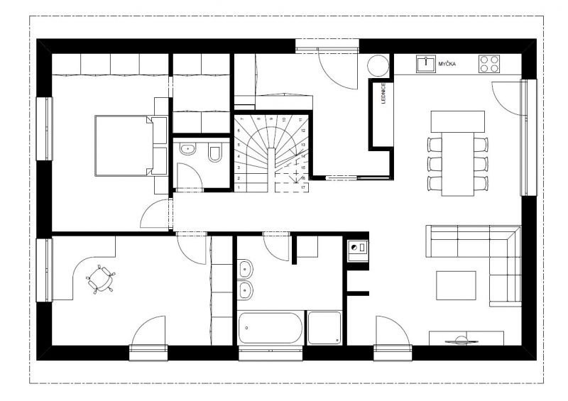
Atypický dům je vhodný pro úzké parcely i pro oblasti s požadavkem na větší sklon střechy. Celková dispozice 6 + kk je vytvořena tak, aby dům bylo možné do budoucna využít jako dvougenerační a obyvatelům spodního podlaží sloužila komfortně dispozice 3 + kk (ložnice, pokoj, kuchyň s obývákem, samostatné WC a koupelna) a podkroví posloužilo jako další 3 + kk (kde jsou zatím 3 prostorné pokoje, koupelna a technická místnost). Z technické místnosti je možné velmi snadno vytvořit druhou kuchyni. Každé patro má své sociální zázemí.
ATYP LIBRANTICE
Dodavatel:
MS HAUS s.r.o.
Parametry projektu ATYP LIBRANTICE
| Společnost | MS HAUS s.r.o. |
| Adresa | Librantice 246 Librantice 503 46 |
| Mobil | 603 158 582 |
|
|
|
| Web | ms-haus.cz |
| Charakteristika domu | samostatný |
| Počet podlaží | Vícepodlažní |
| Generačnost | Vícegenerační |
| Konstrukční systém | Panelový |
| Podlahová plocha (užitná) | 178 |
| Zastavěná plocha | 162 |
| Dispozice | Větší jak 5+1 |
| Kontaktní osoba | Ing. Jan Moravec |
| Otevřeno | 8 - 16 hod |
Popis projektu ATYP LIBRANTICE
Poloha
Librantice 246, 503 46, Librantice, Královéhradecký kraj, Česká republika
Telefon: 603 158 582
Web: www.ms-haus.cz
E-mail: moravec@ms-haus.cz









Čerstvé novinky ze světa dřevostaveb