Nejoblíbenější dům (přes 149 m2 podlahové plochy) z typové nabídky firmy VEXTA je pro zákazníky jednoznačným favoritem. Opravdu se povedl, o čemž se můžete přesvědčit třeba v Šestajovicích na Praze východ, kde je k vidění jako „vzorový". Vyznačuje se vzdušností, prosvětlením, moderním trendy vzhledem.
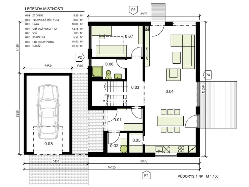
V přízemí domu je obývací pokoj s velkými prosklenými plochami oken a vstupem přímo na terasu, schodiště a kuchyně s jídelnou, které vytvářejí jeden společný obytný prostor. Dále je zde technická místnost, spíž, koupelna s WC a hostinský pokoj. Podkroví je navrženo jako „soukromá část domu", kde se nachází ložnice, dva další pokoje, koupelna s WC, komora a hala, která se dá využít jako pracovní kout. Moderní vzhled domu podtrhuje sedlová střecha bez přesahů. Chcete-li architektonicky zajímavý, moderní a finančně dosažitelný dům, není co řešit!














Čerstvé novinky ze světa dřevostaveb