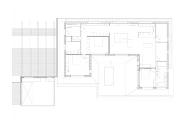
| Společnost | Dřevostavby MC Novák s.r.o. |
| Počet podlaží | Vícepodlažní |
| Konstrukční systém | Panelový |
| Podlahová plocha (užitná) | 160 |
| Zastavěná plocha | 80 |
| Dispozice | 5+kk/5+1 |
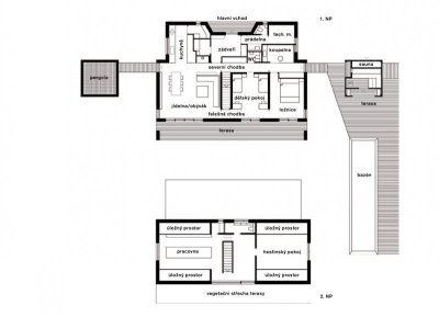
| Společnost | Dřevostavby MC Novák s.r.o. |
| Počet podlaží | Jednopodlažní |
| Konstrukční systém | Panelový |
| Podlahová plocha (užitná) | 152 |
| Obytná plocha | 94,10 |
| Zastavěná plocha | 167 |
| Dispozice | 4+kk/4+1 |
| Cena dřevostavby na klíč (vč. DPH) | 3 051 200 |
| Společnost | Dřevostavby MC Novák s.r.o. |
| Počet podlaží | Jednopodlažní |
| Konstrukční systém | Panelový |
| Podlahová plocha (užitná) | 200 |
| Zastavěná plocha | 240 |
| Dispozice | 4+kk/4+1 |
| Společnost | Dřevostavby MC Novák s.r.o. |
| Počet podlaží | Vícepodlažní |
| Konstrukční systém | Panelový |
| Podlahová plocha (užitná) | 160 |
| Zastavěná plocha | 194 |
| Dispozice | 5+kk/5+1 |
| Společnost | Dřevostavby MC Novák s.r.o. |
| Počet podlaží | Jednopodlažní |
| Konstrukční systém | Panelový |
| Podlahová plocha (užitná) | 103,10 |
| Obytná plocha | 70,70 |
| Zastavěná plocha | 95,90 |
| Dispozice | 4+kk/4+1 |
| Cena dřevostavby na klíč (vč. DPH) | 2 061 600 |

Čerstvé novinky ze světa dřevostaveb