prémiové modulové dřevostavby

RD Tehov - dřevostavba na klíč

Dodavatel: Dřevostavby MC Novák s.r.o.

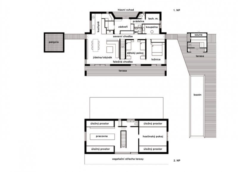
Parametry projektu RD Tehov - dřevostavba na klíč

Společnost Dřevostavby MC Novák s.r.o.
Charakteristika domu samostatný
Počet podlaží Vícepodlažní
Generačnost Jednogenerační
Konstrukční systém Panelový
Podlahová plocha (užitná) 160
Zastavěná plocha 194
Dispozice 5+kk/5+1
ZOBRAZIT DALŠÍ PROJEKTY FIRMY

Popis projektu RD Tehov - dřevostavba na klíč

Zeptejte se na tento produkt

Sdílet obsah

Partneři projektu

news arrowČerstvé novinky ze světa dřevostaveb

Přihlaste se k odběru zadáním e-mailu