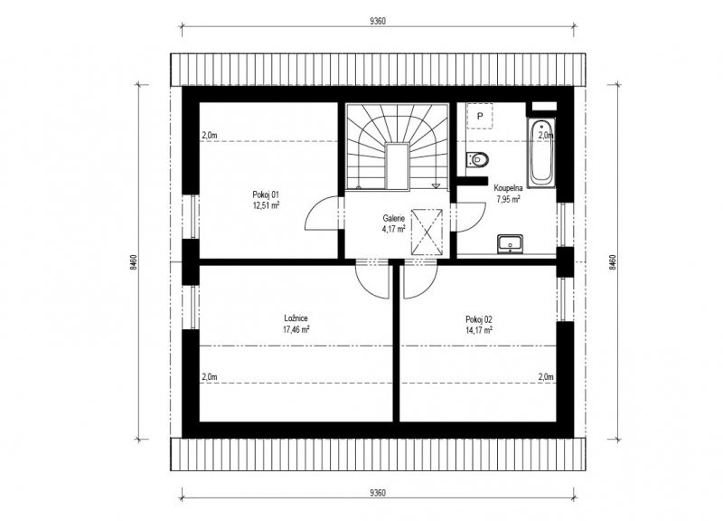
Dřevostavba Avanti 1-118 s šikovným členěním prostoru nabízí na zastavěné ploše 79 m2 skoro 118 m2 užitné plochy, rozdělené do dispozice 5 + KK. V přízemí je prostorný obývací pokoj s kuchyňským koutem a jeden samostatný pokoj. Samozřejmostí je sociální zařízení. V patře jsou tři ložnice a prostorná koupelna.
Avanti 1-118 - dřevostavba na klíč
Dodavatel:
Haas Fertigbau s.r.o.
Parametry projektu Avanti 1-118 - dřevostavba na klíč
| Společnost | Haas Fertigbau s.r.o. |
| Web | www.haas-fertigbau.cz/drevostavby/avanti-1-118 |
| Charakteristika domu | samostatný |
| Počet podlaží | Jednopodlažní |
| Konstrukční systém | Panelový |
| Podlahová plocha (užitná) | 59,43 m2 |
| Zastavěná plocha | 74,97 m2 |
| Dispozice | 3+kk/3+1 |
| Cena hrubé stavby (vč. DPH) | 3 550 000,00 Kč |
| Cena dřevostavby na klíč (vč. DPH) | 6 122 000,00 Kč |












Čerstvé novinky ze světa dřevostaveb