BG 120

Dodavatel: Avanta Systeme spol. s r.o.

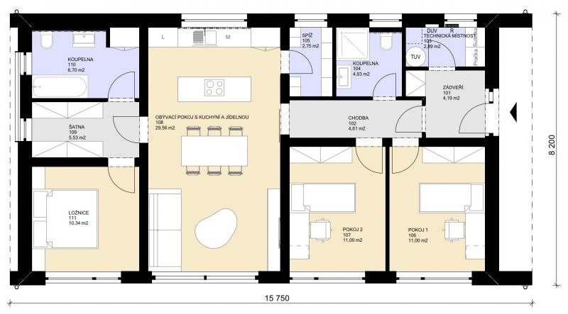
Parametry projektu BG 120

Společnost Avanta Systeme spol. s r.o.
Charakteristika domu samostatný
Počet podlaží Jednopodlažní
Generačnost Jednogenerační
Konstrukční systém Panelový
Podlahová plocha (užitná) 92,6 m2
Zastavěná plocha 120 m2
Dispozice 4+kk/4+1
Sklon střechy 23°
Cena hrubé stavby (vč. DPH) 2 514 900,00 Kč
ZOBRAZIT DALŠÍ PROJEKTY FIRMY

Popis projektu BG 120

Zeptejte se na tento produkt

Sdílet obsah

Partneři projektu

news arrowČerstvé novinky ze světa dřevostaveb

Přihlaste se k odběru zadáním e-mailu