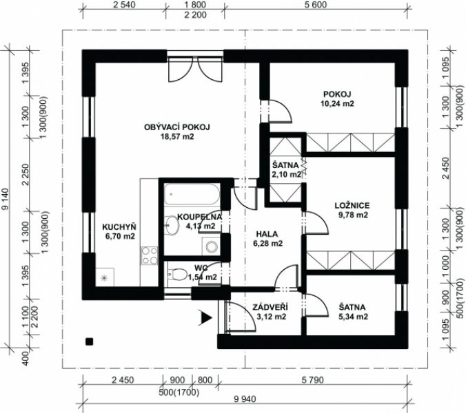
Členitější dřevostavba s jasnou snahou využití vnitřního prostoru do posledního místa. Velikost úložných prostor (šaten a šatních skříní) by mohl závidět i leckterý větší dům. Kryté zápraží skýtá dostatek místa, třeba na kočárek...
BG 82
Dodavatel:
Avanta Systeme spol. s r.o.
Parametry projektu BG 82
| Společnost | Avanta Systeme spol. s r.o. |
| Charakteristika domu | samostatný |
| Počet podlaží | Jednopodlažní |
| Generačnost | Jednogenerační |
| Konstrukční systém | Panelový |
| Podlahová plocha (užitná) | 67,8 m2 |
| Zastavěná plocha | 84,62 m2 |
| Tvar střechy | sedlová |
| Dispozice | 3+kk/3+1 |
| Sklon střechy | 25° |
| Místnost navíc | Šatna |
| Cena hrubé stavby (vč. DPH) | 1 257 375,00 Kč |





Čerstvé novinky ze světa dřevostaveb