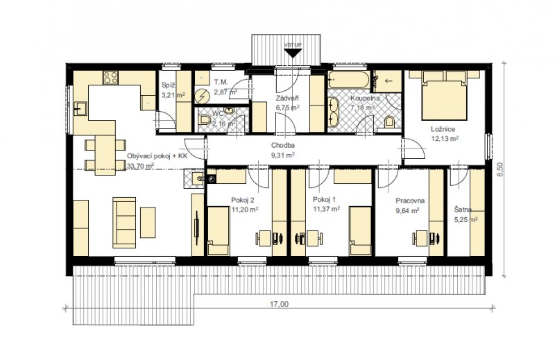
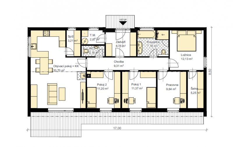
Předností této varianty je samostatná prostorná pracovna a hlavní ložnice s šatnou. Terasa je přístupná z obývacího pokoje, který spolu s kuchyňským koutem tvoří největší místnost v domě. Dalším praktickým vybavením je i spíž, která je přímo přístupná z kuchyňského koutu. Fasádu domu lze opticky rozbít barvou nebo dřevěným obkladem, přičemž zapuštěné závětří a zadní část domu se k tomu přímo nabízí. Dům se chlubí velkou koupelnou a technickou místností přístupnou ze zádveří.
Dům je ideální pro čtyřčlennou rodinu s potřebou samostatného pracovního prostoru.
Vzhledem k větší velikosti zastavěné plochy je dům vhodný spíše pro podlouhlé rovinaté pozemky.




Čerstvé novinky ze světa dřevostaveb