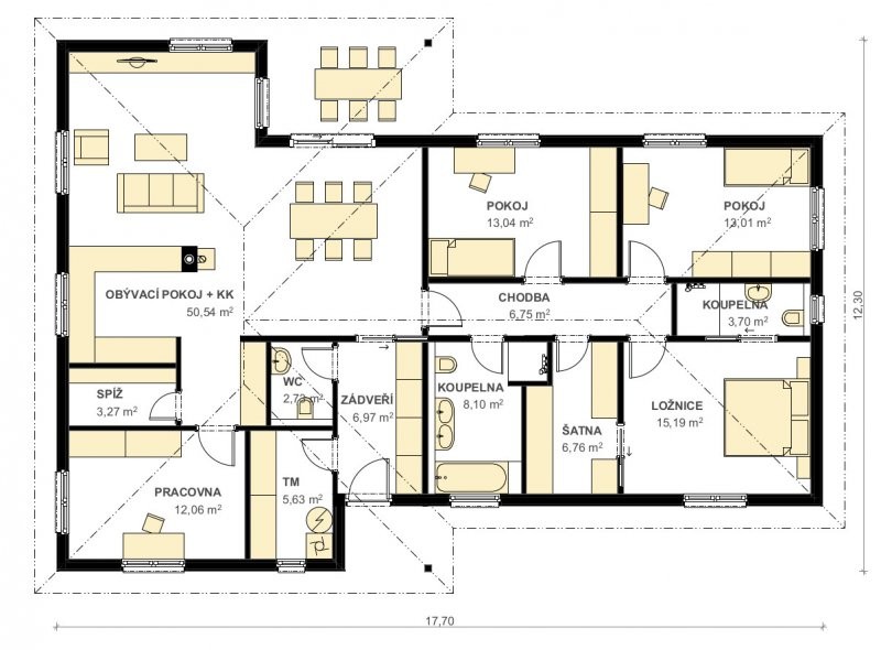
Typový bungalov XL 04 nabízí maximum prostoru pro Vaši rodinu i dostatek skladovacích prostor. Využít můžete prostornou šatnu, technickou místnost i spíž poblíž kuchyně. Velký obývací prostor se vstup na terasu je ideální pro rodinná setkání. Zároveň je samostatnou chodbou oddělena klidová část domu v pravé části. Prostornou pracovnu lze využít také jako pokoj pro hosty.
Bungalow XL 04 - dřevostavba na klíč
Dodavatel:
DOMY D.N.E.S. s.r.o.
Parametry projektu Bungalow XL 04 - dřevostavba na klíč
| Společnost | DOMY D.N.E.S. s.r.o. |
| Charakteristika domu | samostatný |
| Počet podlaží | Jednopodlažní |
| Generačnost | Jednogenerační |
| Konstrukční systém | Panelový |
| Podlahová plocha (užitná) | 148 m2 |
| Zastavěná plocha | 173 m2 |
| Dispozice | 5+kk/5+1 |
| Cena hrubé stavby (vč. DPH) | 1 980 000,00 Kč |
| Cena dřevostavby na klíč (vč. DPH) | 4 910 000,00 Kč |




Čerstvé novinky ze světa dřevostaveb