Stavba je na pozemku umístěna s ohledem na stávající zástavbu v návaznosti na přilehlou komunikaci, je otevřena směrem k jihu do zahrady, rozměrné prosklené plochy umožní v zimních měsících využití nemalých tepelných zisků ze slunečního záření. V letních měsících jsou tyto zisky eliminovány předokenními žaluziemi.
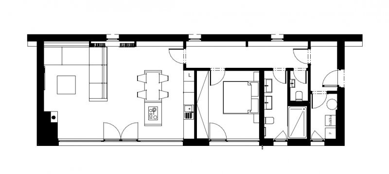
Rekreační objekt je přízemní. Při východní straně se nachází vstup do domu, tento je přístupný přes vyvýšenou terasu vzhledem ke zvolené konstrukci domu a úrovně +0,000. Dispozice dále sestává ze zádveří, technické místnosti, samostaného WC a koupelny, chodby ze které je vstup do pokoje a dále obývacího pokoje s jídelnou a kuchyní. Přes obývací pokoj lze dále pokračovat na venkovní terasu. Základní hmoty fasád tvoří horizontální dřevěný obklad
- Autor arch. návrhu: Ing. arch. Lukáš Pejsar
- Autor projektu: Libor Švehla, DiS.




















Čerstvé novinky ze světa dřevostaveb