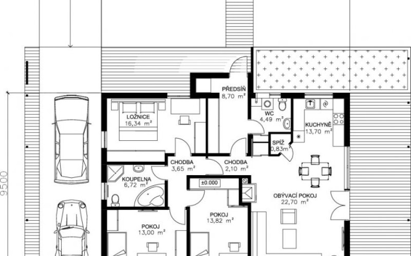
Nepodsklepený jednopodlažní rodinný domek velikostní kategorie 4+kk pro 4-5ti člennou rodinu. Dům je umístěn na rovinatém pozemku se vstupem ze severovýchodní strany. V této cenové kategorii poskytuje dům maximální komfort. Disponuje prostornou předsíní s úložným prostorem, velkou ložnicí s pracovnou, která se dá opticky oddělit od spací části. Intimní zóna ložnice a dětských pokojů je vhodně umístěna stranou od obytné části a lze ji uzavřít dveřmi na chodbě. Obývací prostor domu se otvírá na terasu a do zahrady na jihovýchodní straně. K domu je napojen parkovací přístřešek pro dva osobní automobily. Zastřešení stání probíhá i na přední fasádě a vytváří tak krytý vstupní prostor.
Chomutov - dřevostavba na klíč
Dodavatel:
Origis s.r.o.
Parametry projektu Chomutov - dřevostavba na klíč
| Společnost | Origis s.r.o. |
| Charakteristika domu | samostatný |
| Počet podlaží | Jednopodlažní |
| Generačnost | Jednogenerační |
| Konstrukční systém | Panelový |
| Podlahová plocha (užitná) | 106 m2 |
| Zastavěná plocha | 127 m2 |
| Dispozice | 4+kk/4+1 |



Čerstvé novinky ze světa dřevostaveb