Country 142 - dřevostavba na klíč

Dodavatel: DOMYRIO s.r.o.

Parametry projektu Country 142 - dřevostavba na klíč

Společnost DOMYRIO s.r.o.
Charakteristika domu samostatný
Počet podlaží Vícepodlažní
Generačnost Jednogenerační
Konstrukční systém Panelový
Podlahová plocha (užitná) 142,8 m2
Zastavěná plocha 96,8 m2
Dispozice Větší jak 5+1
Cena hrubé stavby (vč. DPH) 3 718 000,00 Kč
ZOBRAZIT DALŠÍ PROJEKTY FIRMY

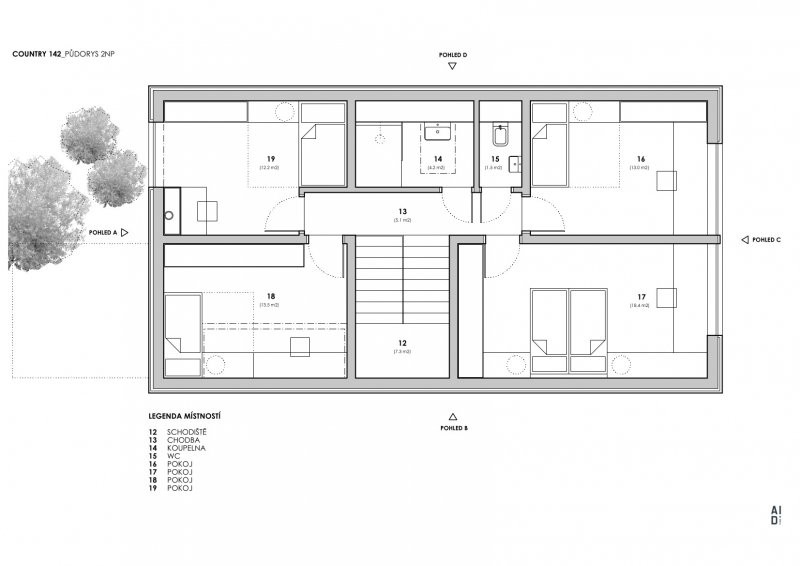
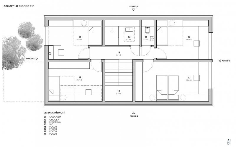
Popis projektu Country 142 - dřevostavba na klíč

Dům pro velkou rodinu

V této dispozici naleznete nejen množství ložnic a dětských pokojů, ale také koupelnu u hlavní ložnice, komoru přístupnou z krytého vstupu, prostorné zádveří a pohodlné schodiště.

Zeptejte se na tento produkt

Sdílet obsah

Partneři projektu

news arrowČerstvé novinky ze světa dřevostaveb

Přihlaste se k odběru zadáním e-mailu