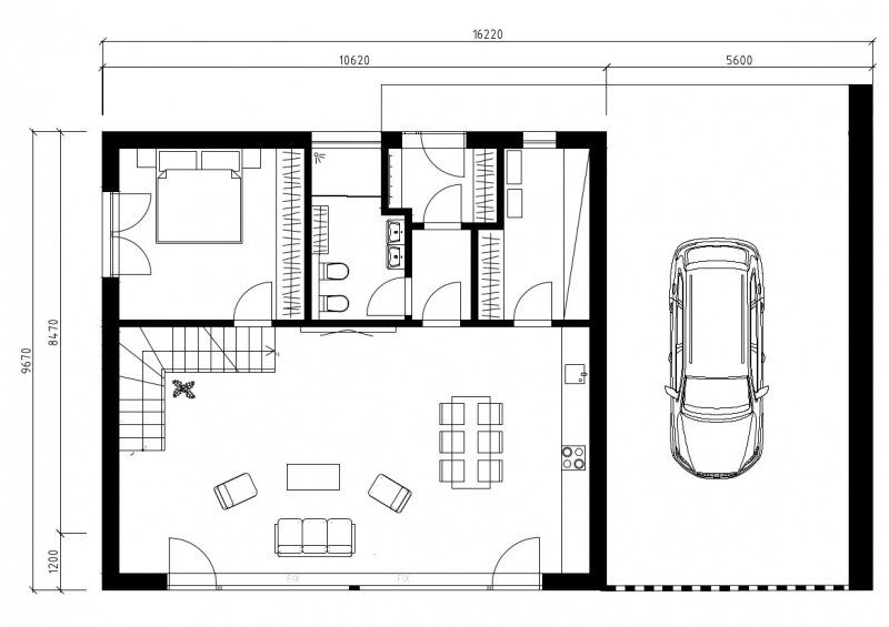
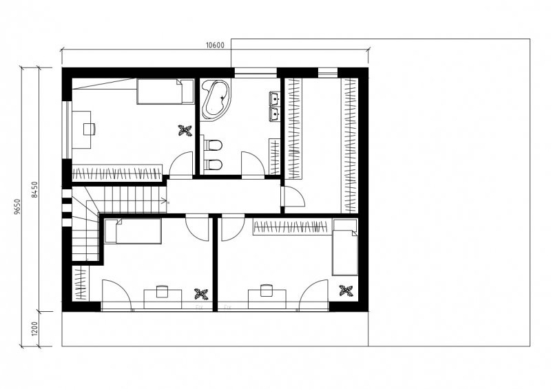
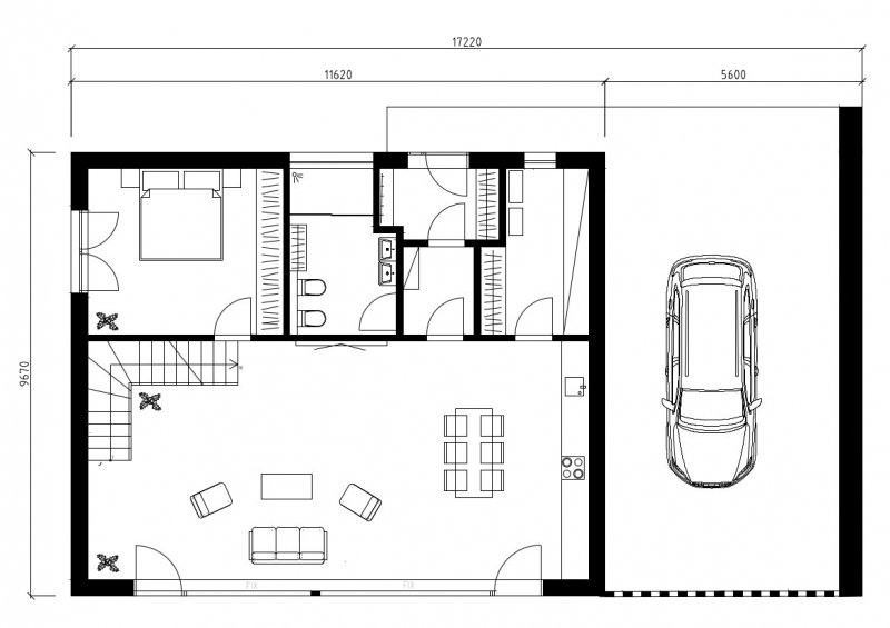
Dům navržený do městské zástavby, který představuje moderní bydlení. Patro nabízí velikost, kterou větší rodina ocení, poskytuje osobní prostor na několika úrovních, ale přitom není tak náročný na dimenze pozemku. Po příchodu Vás ohromí velkoryse řešený společný prostor domu.
Propojení kuchyně, jídelny a obývacího pokoje s přímým vstupem na terasu a výhledem do zahrady zhmotňuje naše sny a představy o moderním bydlení. V přízemí pak najdete také hlavní ložnici se samostatným vstupem na zahradu, která je však skryta hlavnímu dění a poskytuje tak více soukromí a klidu.
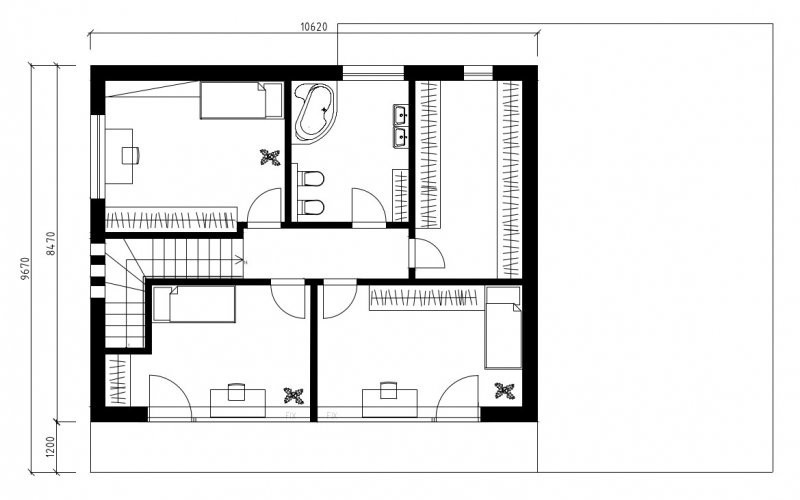
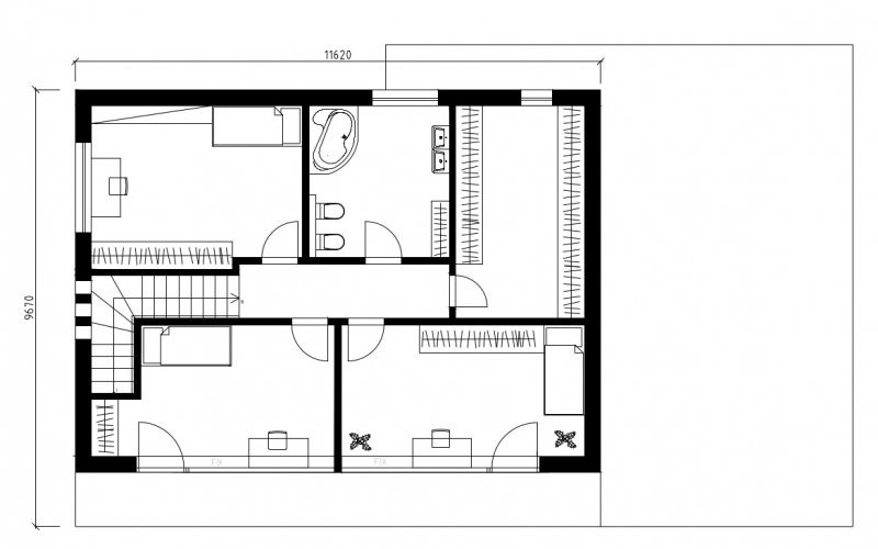
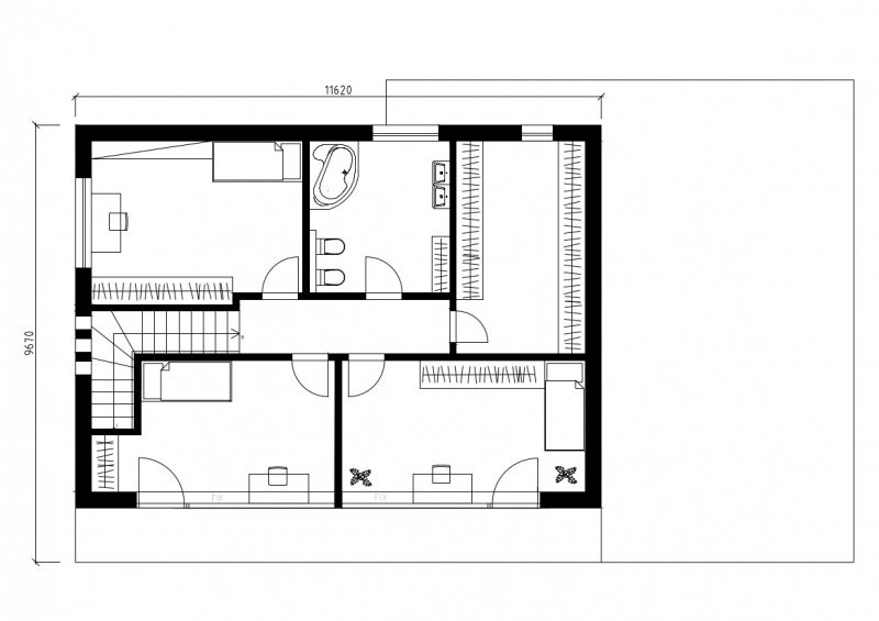
Prostorná koupelna a velká technická místnost pak dotváří ucelenost spodního patra. V hodní části domu se nachází 3 ložnice, koupelna a prostorná šatna.















Čerstvé novinky ze světa dřevostaveb