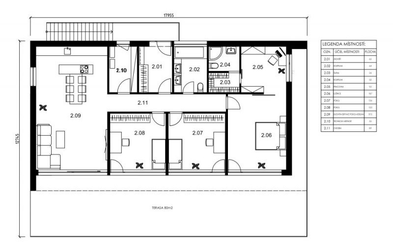
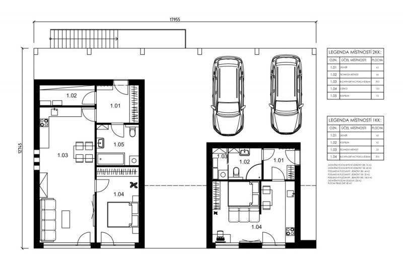
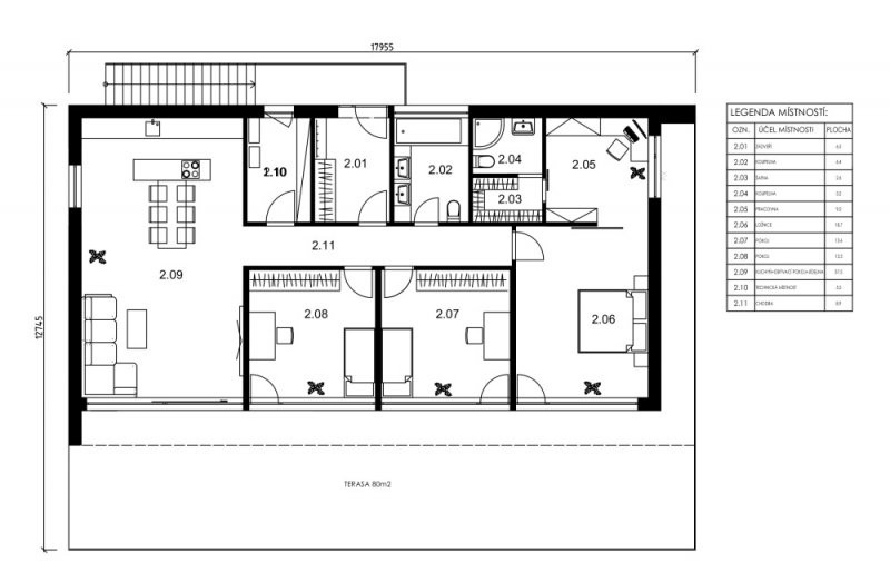
Velkolepý dům DREAM 02 plní sny i těm nejnáročnějším klientům. Chytře řešené dispozice lze rozdělit do třech samostatných bytových jednotek a využít tak možnost vícegeneračního bydlení. V případě potřeby se mohou jednotlivé byty propojit v jeden velký prostor nebo část využít jako garáž či prostor k podnikání.
Dům působí moderním dojmem a lze jej umístit i na menší pozemek, je proto vhodný jako developerský projekt do městské zástavby. Zajímavou dominantou je velká terasa v patře, ze které je výhled téměř do všech stran. DREAM 02 je opravdovým splněným snem.






Čerstvé novinky ze světa dřevostaveb