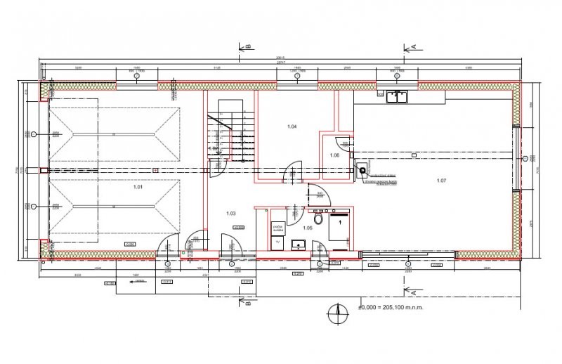
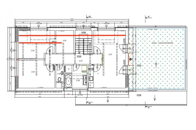
Moderní pohodlný dům pro pětičlennou rodinu. V I.NP je garážové stání na dva vozy, technická mistnost spojené s koupelnou, pracovna a veliký obývací pokoj s kuchyní. V II.NP jsou dětské pokoje a ložnice rodičů, včetně šatny a koupelny s výhledem na zelenou střechu I.NP.
Dřevostavba Louny - dřevostavba na klíč
Dodavatel:
DBH s.r.o.
Parametry projektu Dřevostavba Louny - dřevostavba na klíč
| Charakteristika domu | samostatný |
| Počet podlaží | Vícepodlažní |
| Generačnost | Jednogenerační |
| Konstrukční systém | Panelový |
| Podlahová plocha (užitná) | 108,52 m2 |
| Zastavěná plocha | 161 m2 |
| Dispozice | 4+kk/4+1 |
| Cena dřevostavby na klíč (vč. DPH) | 7 200 000,00 Kč |




Čerstvé novinky ze světa dřevostaveb