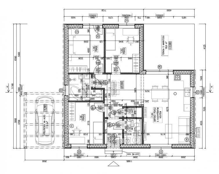
Dřevostavba Skorotice je bungalov menšího typu, s pultovými střechami bez přesahů, který mu tak zajišťují moderní a neotřelý vzhled. Může dobře sloužit jako startovací bydlení pro mladé páry či rodiny a také je oblíbený staršími páry, které už mají požadavky zejména na nové bezúdržbové bydlení s nízkými náklady na energie.
Dřevostavba Skorotice - dřevostavba na klíč
Dodavatel:
DBH s.r.o.
Parametry projektu Dřevostavba Skorotice - dřevostavba na klíč
| Charakteristika domu | samostatný |
| Počet podlaží | Jednopodlažní |
| Generačnost | Jednogenerační |
| Konstrukční systém | Panelový |
| Podlahová plocha (užitná) | 90,23 m2 |
| Zastavěná plocha | 111,62 m2 |
| Cena dřevostavby na klíč (vč. DPH) | 3 700 000,00 Kč |



Čerstvé novinky ze světa dřevostaveb