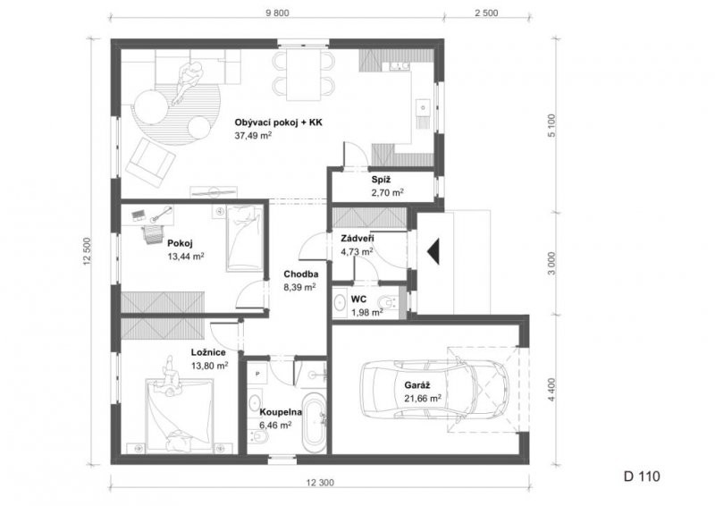
Přízemní rodinný dům, který nabídne dostatek prostoru pro bydlení i parkování osobního auta.
Vše pod jednou střechou nabízí bungalov s číslem 110. Dům s prostorným krytým vchodem i garáží pro auto. Bungalov si volí investoři jako bezbariérové řešení bydlení pro seniorský věk, ve kterém je ale dostatečný prostor v samostatném pokoji pro návštěvu vnoučat, nebo mladé rodiny. Samostatná místnost s rozměry 13,5 m2 může sloužit jako pracovna, dětský pokoj, šicí nebo ruční dílna či relaxační prostor. Obývací pokoj spojený s kuchyňským koutem a spižírnou hned vedle linky neizolují kuchaře či kuchařku mimo hlavní ruch života.



Čerstvé novinky ze světa dřevostaveb