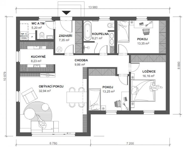
Dům 115 je chytře vymyšlený bungalov pro mladou rodinu.
Na více než 100 m2 obytné plochy jsou dostatečně velké 2 samostatné pokoje, navíc jedna ložnice, obývací pokoj čtvercového půdorysu s vizuálně oddělenou kuchyní. Architekt při návrhu myslel i na koupelnu, do které se vejde vana současně se sprchovým koutem. Toaletu umístil samostatně u technické místnosti. Tento detail ocení v přízemním domě nejen rodina, ale i návštěvy.



Čerstvé novinky ze světa dřevostaveb