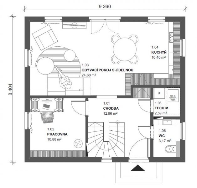
Rodinný dům 122 Vám nabídne útulný prostor pro spokojený rodinný život.
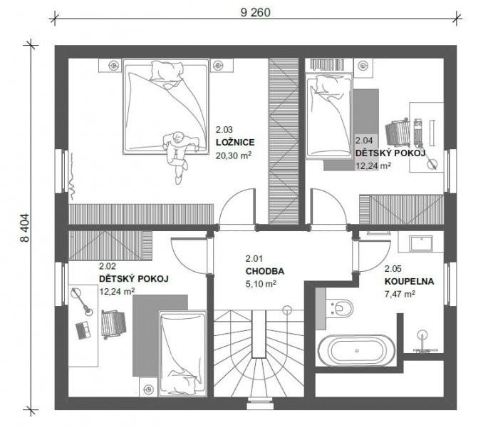
Dům 122 patří mezi nejoblíbenější dispoziční řešení patrového domu. Na dosti malé zastavěné ploše, cca 76 m2, je navržen pohodlný životní prostor pro čtyřčlennou rodinu a ještě se našlo místo i pro pracovnu v přízemí. V přízemí je také obývací část s kuchyňským koutem, kterým je věnována polovina domu. Samostatná toaleta, technická místnost a schodiště jsou umístěny hned u vchodových dveří. V prvním patře jsou tři pokoje a koupelna s vanou i sprchovým koutem.




Čerstvé novinky ze světa dřevostaveb