Dům 132 je moderní patrový dům jednoduchých linií.
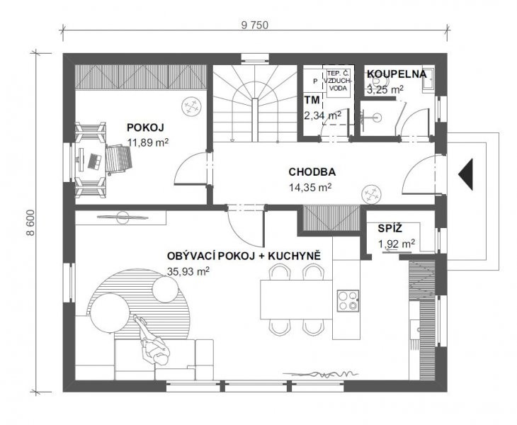
Jednoduché linie stavby dovolují maximální využití prostoru. Jádrem domu je obývací pokoj s kuchyňským koutem a jídelnou, které jsou navrženy přes celou polovinu přízemí s velkorysým prosklením. V přízemí je samostatný pokoj, technická místnost a koupelna se sprchovým koutem a toaletou. Schodiště je umístěno v chodbě, takže nezabírá obytný prostor. V prvním patře jsou dva velké pokoje, prostorná ložnice a koupelna na téměř 10 m2. V tomto domě může vést pohodlný život i šestičlenná rodina.




Čerstvé novinky ze světa dřevostaveb