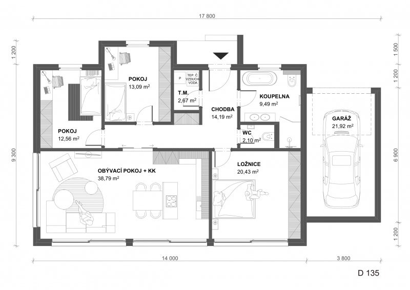
Dům 135 je moderní a velmi prostorný bungalov pro spokojený život.
Z čelního pohledu je dům rozdělen na 3 postupně ustupující celky tak, že vizuálně rozbíjí možnou monotónnost dlouhého kvádru. Zajímavé zastřešení vstupních dveří vytváří dojem působivého vstupního portálu. Směrem do zahrady je dům koncipován s velkými prosklenými plochami tak, aby si majitelé užili co nejširšího pohledu do přírody. Bungalov má všechny místnosti přístupné z centrální chodby, takže se neplýtvá cenným místem. V domě tak jsou k dispozici 3 samostatné pokoje a velkorysý obývací prostor s kuchyňským koutem.



Čerstvé novinky ze světa dřevostaveb