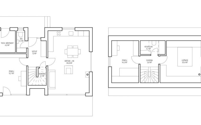
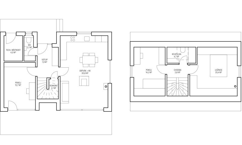
Jedná se o novostavbu rodinného domu s obdélníkovým půdorysným tvarem. Navržený rodinný dům má 1.NP s terasou a obytné podkroví. Zastřešení rodinného domu je sedlovou střechou.
Vstup do objektu je situován z východní strany. Největší prosklené plochy se otevírají do západní strany pozemku. Na tuto stranu je situována i terasa. Vstup a vjezd na pozemek je z jižní strany.
Autor návrhu: Martin Hajný















Čerstvé novinky ze světa dřevostaveb