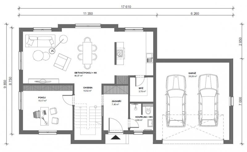
Ohromí Vás prostorný dům dýchající příjemnou atmosférou.
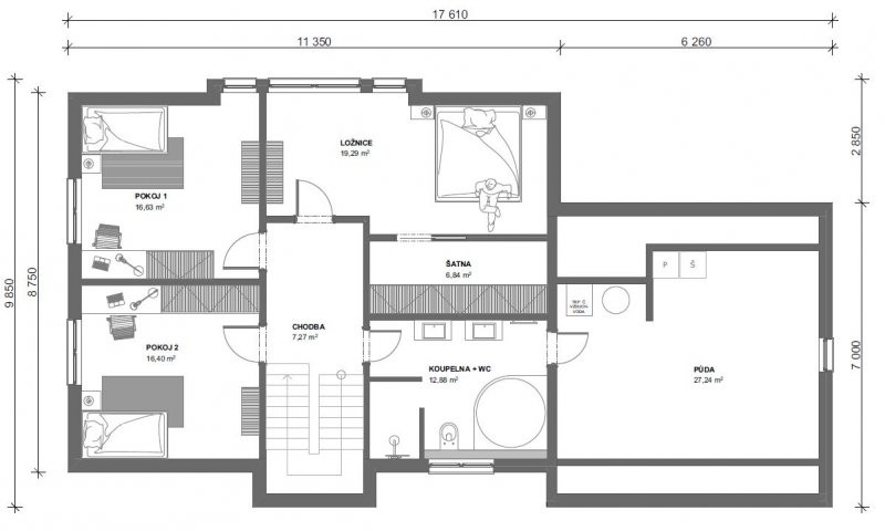
Interiér domu začíná prostorným zádveřím, ze které se vstupuje do útulné koupelny pro hosty a obývacího pokoje ze kterého se po schodišti dostaneme do podkroví. Obývací pokoj je spojen s jídelní částí a dá se z něj vejít i do pracovny či pokoje pro hosty.Kuchyň odděluje plná příčka, ale s volným průchodem bez dveří. Z kuchyně je pak přístup do prostorné spíže. V podkroví se nachází soukromá část domu sestávající z ložnice rodičů, dvou dětských pokojů a velké rodinné koupelny ze které se vchází do prostorné technické místnosti spojené s šatnou.












Čerstvé novinky ze světa dřevostaveb