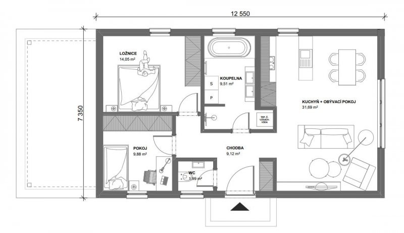
Bungalov s pravidelným půdorysem a garážovým stáním s dispozicí 3 + kk.
Útulný bungalov s obdélníkovým půdorysem je v projektu protažen o zastřešené garážové stání. Dispoziční řešení umožňuje dostatečné prosvětlení každé místnosti, včetně koupelny i samostatné toalety. Do obývacího pokoje s kuchyňským koutem s jídelnou je samostatný vstup z chodby. I menší dům je tak rozdělen na klidovou a rušnou část.



Čerstvé novinky ze světa dřevostaveb