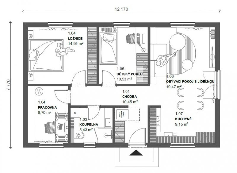
Bungalov s třemi samostatnými pokoji a prostornou kuchyní s obývacím pokojem.
Tři samostatné pokoje, které mohou sloužit jako pracovna, ložnice, dětský nebo hostinský pokoj nabízí dům na pouhých 78 m2 obytné plochy. Prostorná kuchyně na téměř 10 m2 a dvojnásobná velikost připojeného obývacího pokoje vyhoví potřebám větších i menších rodin.



Čerstvé novinky ze světa dřevostaveb