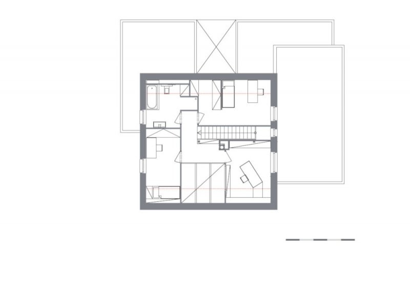
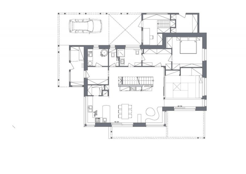
Rodinný dům s přízemím a obytným podkrovím pro manželský pár se dvěma menšími dětmi. Celková koncepce domu respektuje okolní původní zástavbu a řeší návaznost na stávající dům prarodičů, který byl, v rámci výstavby nového domu, zrekonstruován a doplněn o parkovací stání a přístřešek, který slouží pro obě budovy. Moderní skeletová dřevostavba má difuzně otevřenou skladbu obvodových konstrukcí. Na svislé podpory pro zastřešení vstupní markýzy a terasy jsou použity rostlé kmeny.
Více informací o tomto domě na www.domyatrea.cz.

















Čerstvé novinky ze světa dřevostaveb