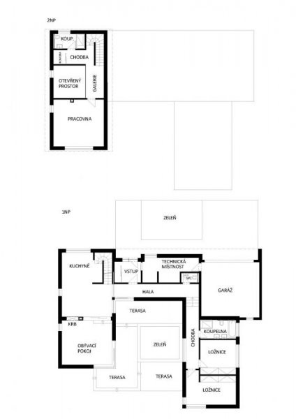
Dřevostavbu navrhujeme jako tři hmoty v různých výškových úrovních uspořádané kolem jádra domu – patia - s částečně krytou terasou a vzrostlou zelení. Hlavním prvkem patia je vzrostlá zeleň, která je hlavní motiv této dřevostavby. Hlavní hmota – denní část – je dvoupodlažní se sedlovou střechou. Dolní podlaží dřevostavby sleduje svažitost terénu, díky které je rozčleněno na dvě výškové úrovně. Prostor nad jídelnou je otevřen do horního podlaží, odkud je interiér prosvětlen.
Hmota orientovaná rovnoběžně s komunikací – servisní část – je jednopodlažní s plochou střechou. Přesah střechy na vstupní straně kryje vstup do domu a do garáže a na straně patia vytváří velkorysý krytý venkovní obytný prostor. Na servisní část navazuje ve snížené úrovní noční část s ložnicemi a hygienickým zázemím. Tato hmota je pojednána minimalisticky s plochou ozeleněnou střechou bez přesahů, tak abychom omezili stínění patia. Patio je rozčleněno na tří výškové úrovně.
Redakční návštěva tohoto domu.
Jedná se o individuální dřevostavbu a tyto stavby mají individuální ceny. Ceny staveb nezveřejňujeme, chráníme tím soukromí majitelů. V případě zájmu o dřevostavbu nás prosím kontaktujte. Rádi Vám zpracujeme nabídku po osobním setkání a seznámení se s Vašimi požadavky.









Čerstvé novinky ze světa dřevostaveb