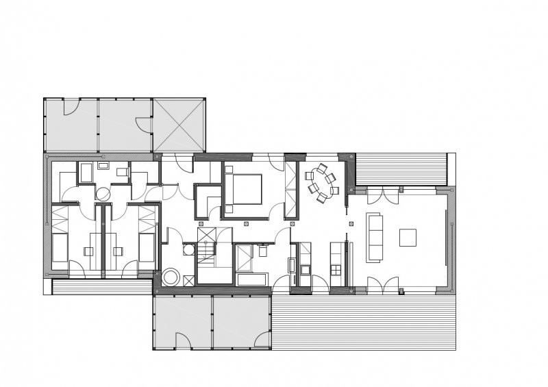
Částečně dvoupodlažní rodinný dům, v podhůří Jizerských hor, pro manželský pár se dvěma menšími dětmi. Dům je umístěn v západní části svažitého pozemku a navazuje na stávající zástavbu. Střední dominantní hmota je zastřešena sedlovou střechou s okny směřujícími na východ s dominantními výhledy na panorama Krkonoš. Na západní straně jsou instalovány fotovoltaické panely. Boční hmoty jsou zastřešeny pultovými střechami s vegetačním souvrstvím, které slouží jako terasy přístupné z podkroví, kde je umístěna pracovna. Hlavní obytnou část tvoří obývací pokoj, kuchyň a jídelna v západním křídle domu. V přízemí je také situována ložnice, koupelna a šatna rodičů. Ve východním křídle jsou umístěny dva dětské pokoje s vlastní koupelnou a šatnou.
Dům je doplněn venkovní saunou, dvěma sklady a dřevěnou terasou, která bezprostředně navazuje na koupací jezírko, které je napájeno z vydatného vodního zdroje na pozemku. Vodu z jezírka odvádí potůček, který protéká rozlehlou permakulturní zahradou do spodní části pozemku, ve které je situován vodní biotop.
Konstrukčně se jedná se o moderní skeletovou dřevostavbu s difúzně otevřenou skladbou obvodových konstrukcí. Stavební řešení, včetně detailů, vychází z uceleného stavebního systému společnosti ATREA. Ve značné míře jsou využity přírodní obnovitelné a recyklované materiály (dřevo, desky na bázi dřeva, celulóza apod.). Na hlavních plochách fasády je použita tenkovrstvá omítka v šedé barvě, doplňující plochy tvoří dřevěný obklad z modřínu.
Energeticky úsporné stavební řešení doplňuje ucelený systém technických zařízení, který zajišťuje komfortní a zdravé bydlení s nízkými provozními náklady. Pro provoz domu jsou přednostně využívány obnovitelné zdroje energie (fotovoltaika, tepelné čerpadlo). Komfortní klima a příjemnou atmosféru ve vzdušném a prosvětleném interiéru pomáhají dotvořit masivní dřevěné podlahy, hudební koutek s pianem, profesionální audio sestava, akustický obklad v hlavní obytné části a vnější žaluzie.
Více o tomto domě na www.domyatrea.cz.











Čerstvé novinky ze světa dřevostaveb