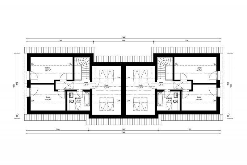
Dispozice 115 m2 každé bytové jednotky dvojdomu Duo 4-230 je dělena do obývacího prostoru s kuchyní, tří pokojů, koupelny, šatny a nezbytné technické místnost s WC a prádelnou. Nedílnou součástí každého bytu je navíc garáž.
Duo 4-230 - dřevostavba na klíč
Dodavatel:
Haas Fertigbau s.r.o.
Parametry projektu Duo 4-230 - dřevostavba na klíč
| Společnost | Haas Fertigbau s.r.o. |
| Web | https:// www.haas-fertigbau.cz/drevostavby/duo-4-230 |
| Charakteristika domu | dvojdům |
| Počet podlaží | Vícepodlažní |
| Generačnost | Vícegenerační |
| Konstrukční systém | Panelový |
| Podlahová plocha (užitná) | 230,34 m2 |
| Zastavěná plocha | 171,26 m2 |
| Dispozice | Větší jak 5+1 |
| Cena hrubé stavby (vč. DPH) | 6 640 000,00 Kč |
| Cena dřevostavby na klíč (vč. DPH) | 11 758 000,00 Kč |













Čerstvé novinky ze světa dřevostaveb