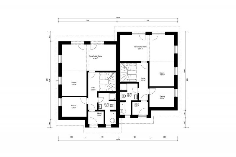
Duo 5-253 to je dvojnásobná porce prostoru pro dvě rodiny. Dispozici 5 + KK doplňuje, pracovna, koupelna a nezbytná technická místnost. Obývací prostor s kuchyní je prosvětlen velkými francouzskými okny, která umožňují snadný přístup na terasu. Dostatek místa nabízejí i tři pokoje v podkroví.
Duo 5-253 - dřevostavba na klíč
Dodavatel:
Haas Fertigbau s.r.o.
Parametry projektu Duo 5-253 - dřevostavba na klíč
| Společnost | Haas Fertigbau s.r.o. |
| Web | https:// www.haas-fertigbau.cz/drevostavby/duo-5-253 |
| Charakteristika domu | dvojdům |
| Počet podlaží | Vícepodlažní |
| Konstrukční systém | Panelový |
| Podlahová plocha (užitná) | 252,98 m2 |
| Zastavěná plocha | 171,26 m2 |
| Dispozice | Větší jak 5+1 |
| Cena hrubé stavby (vč. DPH) | 7 670 000,00 Kč |
| Cena dřevostavby na klíč (vč. DPH) | 13 470 000,00 Kč |












Čerstvé novinky ze světa dřevostaveb