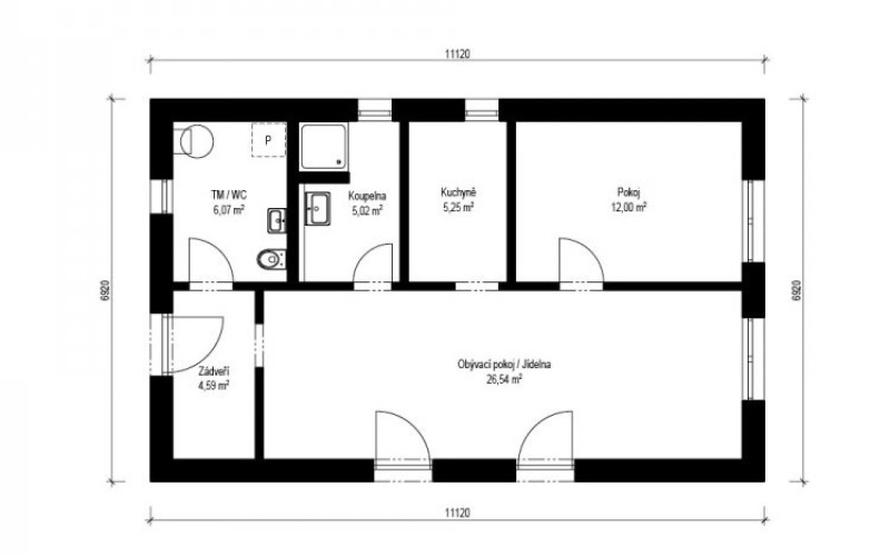
Bungalov Easy 5-59 je největší z řady Easy. Na užitné ploše přes 59 m2 se nachází dost prostorný obývací, samostatná kuchyň, ložnice, koupelna, technická místnost a předsíň. Přesto, že se jedná o menší kompaktní bungalov nabízí všechny veškeré výhody dřevostaveb Haas.
Easy 5-59 - dřevostavba na klíč
Dodavatel:
Haas Fertigbau s.r.o.
Parametry projektu Easy 5-59 - dřevostavba na klíč
| Společnost | Haas Fertigbau s.r.o. |
| Web | www.haas-fertigbau.cz/drevostavby/easy-1-23 |
| Charakteristika domu | samostatný |
| Počet podlaží | Jednopodlažní |
| Generačnost | Jednogenerační |
| Konstrukční systém | Panelový |
| Podlahová plocha (užitná) | 59,47 m2 |
| Zastavěná plocha | 76,95 m2 |
| Dispozice | 2+kk/2+1 |
| Cena hrubé stavby (vč. DPH) | 2 820 000,00 Kč |







Čerstvé novinky ze světa dřevostaveb