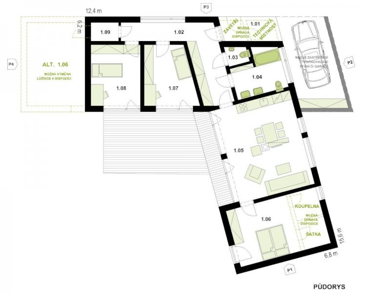
Přízemní variabilní rodinný dům v nízkoenergetickém standardu navržený tak, aby bylo možné připojit kryté parkovací stání či garáž do celého konceptu rodinného domu. Další možností, který tento dům nabízí, jsou varianty umístění ložnice v pravém či levém křídle stavby s vlastní koupelnou a šatnou. Možnost uzavření závětří a vytvoření komory dle individuálních požadavků dává tomuto domu další přidanou hodnotu. Půdorys ve tvaru L vytváří soukromý prostor pro částečně zastřešenou terasu otevřenou do zahrady. Dům je vhodný pro rodinu s dětmi. Dispozice jsou promyšlené tak, aby zajistily veškerý komfort jeho uživatelům. Jedna část domu je určená pro společný život rodiny a druhá naopak poskytuje soukromí pro každého člena samostatně. Hlavní obytná místnost spojuje obývací část s kuchyní i jídelním koutem. V půdorysu nechybí ani technická místnost, prostorná koupelna a samostatné WC. Toto řešení rodinného domu skloubí nové ekologické bydlení se zdravým vnitřním klimatem na vlastním pozemku (v soukromém objektu bez přímých sousedů). Francouzská okna jsou orientována na částečně zastřešenou terasu směrem do zahrady. Provozní náklady energeticky úsporného domu nezatíží vaši peněženku, realizace Vaší představy od projektu po konečnou finalizaci stavby pod jednou firmou zajistí Vaši plnou spokojenost.
Eko top III - dřevostavba na klíč
Dodavatel:
EKOPANELY SERVIS s.r.o.
Parametry projektu Eko top III - dřevostavba na klíč
| Společnost | EKOPANELY SERVIS s.r.o. |
| Charakteristika domu | samostatný |
| Počet podlaží | Jednopodlažní |
| Generačnost | Jednogenerační |
| Konstrukční systém | Panelový |
| Podlahová plocha (užitná) | 113,4 m2 |
| Zastavěná plocha | 150,3 m2 |
| Dispozice | 4+kk/4+1 |
| Cena hrubé stavby (vč. DPH) | 1 921 297,00 Kč |
| Cena dřevostavby na klíč (vč. DPH) | 3 669 905,00 Kč |




Čerstvé novinky ze světa dřevostaveb