Rodinný dům MS 03d je moderní dřevostavba, která byla speciálně navržena pro velmi úzké parcely, kde bez žádosti o výjimku je možno stavět na parcele šíře již od 12,5 m a proto je svým tvarem a dispozicí vhodná nejen do městské zástavby, ale také všude tam, kde je nedostatek prostoru. Je to prostorný dům pro 3-4 osoby, který zabírá velmi malou zastavěnou plochu.
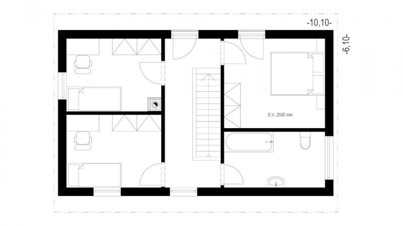
Dispozice je klasická 4 + KK ve dvou podlažích se zajímavým průhledem z galerie, užitná plocha domu je 97 m2. Za příplatek je možné dům prodloužit a tím zvětšit obývací pokoj a pokoje nad ním.
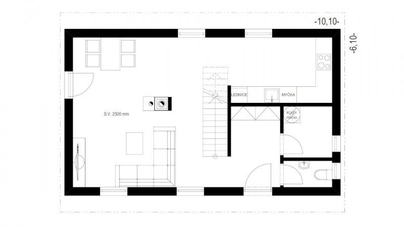
Dalšího komfortu bydlení s efektem snížení nákladů na bydlení může být dosaženo vybavením domku komínem s krbovou vložkou. Díky otevřenému schodišti je možno vytápět krbovými kamny i prostory v patře.
Přízemí domku je moderně otevřený prostor obývacího pokoje spojeného s jídelnou a kuchyňským koutem, který volně navazuje na zádveří s prostornou technickou místností. Dále se v přízemí nachází WC. V patře jsou k dispozici tři pokoje standardní velikosti s komfortní koupelnou.

















Čerstvé novinky ze světa dřevostaveb