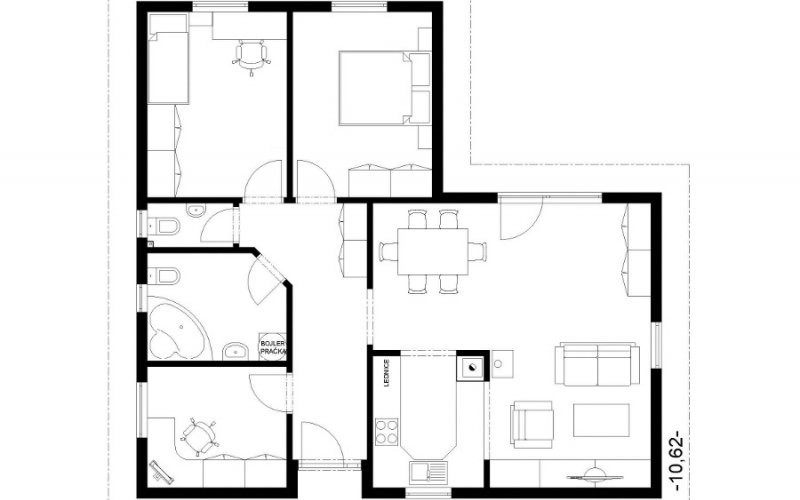
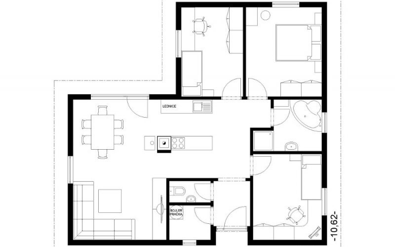
Tento typ dřevostavby je klasickým bungalovem s důrazem na co nejjednodušší dispozici a tím udržení investičních nákladů v rozumných mezích. Dispozici dřevostavby dominuje velký obytný prostor spojující funkce obývacího pokoje, jídelny a haly který je volně napojen na prostor vstupu a kuchyně. Využití třech dalších pokojů je možno kombinovat jako ložnici, dětský pokoj a pracovnu, nebo pokoj pro hosty, či druhý dětský pokoj.
Dřevostavba je vhodná pro použití do nízké zástavby, pro svou výšku hřebene od podlahy jen 5,115m.V domě bylo dbáno na praktické využití prostoru a zároveň technicko tepelného zabezpečení objektu. Obytná plocha dřevostavby je 84,40m2, což je dostatečný prostor pro 3-4 člennou rodinu. Všechny místnosti jsou dostatečně prosvětleny, čímž je zabezpečeno pohodové prostředí pro veškerou vaši práci. Dispozici dřevostavby je možné upravovat dle přání.








Čerstvé novinky ze světa dřevostaveb