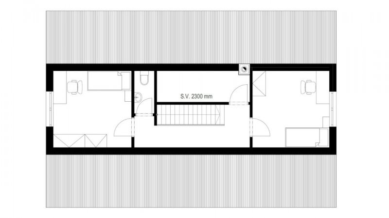
Jedná se o dům, který umožňuje stavět etapovitě, tzn nejprve přízemí a a po zlepšení ekonomické situace i podkroví, přičemž v tomto případě je přízemí dostatečně velké. V přízemí je 4 + 1 v podkroví potom další dva pokoje a komora, či wc a koupelna dle požadavku.
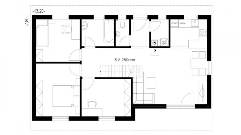
Dům má obdélníkový půdorys a sedlovou střechu. Může zde bydlet až 5 osob. Další možností je i varianta se střechou s minimálním sklonem, bez podkroví. V přízemí je obývací pokoj spojený s kuchyňským koutem, šatna, koupelna, WC, ložnice a jeden pokoj. Z obývacího pokoje je umožněn přístup na terasu, která dokresluje vzhled domu a umožňuje příjemné posezení nejen v letních měsících. Prostorná koupelna je vybavena sprchovým koutem a rohovou vanou a druhým WC.
Místnosti jsou typologicky uspořádány tak aby, byl plně využit prostor a přitom zajištěn plně bezkolizní provoz. Zároveň lze tento typ použít i na pozemcích nepříznivě orientovaných vstupem na jih, či na úzkých parcelách. V objektu bylo dbáno na vyváženost tepelně technického zpracování a nákladů na zhotovení. Dům je vhodný pro 4-5 osob.










Čerstvé novinky ze světa dřevostaveb