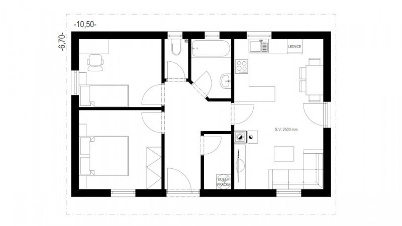
Dům MS 06 vychází z úsporného dispozičního řešení 3+kk s komorou. Je navržen ve dvou variantách a sice se sedlovou střechou s menším spádem okolo 25° a v druhé variantě se sedlovou střechou o spádu 40°, kde je možno v přízemí na místo komory umístit schodiště a do podkroví potom další dva pokoje a komoru a to hned při výstavbě nebo podkroví připravit pro budoucí vestavbu.
Za příplatek je možno obývací pokoj zvětšit dle přání zákazníka, event. vytvořit částečně krytou terasu. Dům lze realizovat na malých či na úzkých parcelách. V objektu bylo dbáno na vyváženost tepelně technického zpracování a nákladů na zhotovení.
MS 06a Ekonomy je vhodná pro 3-4 osob. Dispozici lze různě upravovat dle přání a možností investora.









Čerstvé novinky ze světa dřevostaveb