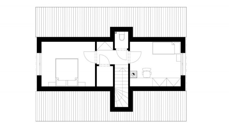
Dřevostavba na klíč MS 06 Ekonomy je malá dřevostvba vhodná i pro větší rodinu. Dispozice je navržena jako 5 + kk s tím, že je možno stavět dřevostavbu za účelem dalšího uspoření okamžitých investičních nákladů etapovitě tzn. nejprve na klíč postavit přízemí a dodatečně dobudovat podkroví. K domku je možné připojit i objekt garáže. A tím jeho užitnou hodnotu ještě zvětšit.
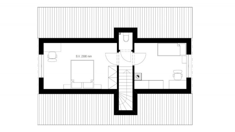
Cena dřevostavby MS 06b Ekonomy obsahuje pouze přípravu pro pozdější vestavbu podkroví.
Dřevostavbu lze realizovat na malých či na úzkých parcelách. V domě bylo dbáno na vyváženost tepelně technického zpracování a nákladů na zhotovení. Dům je vhodný pro 4-5 osob. Dispozici lze různě upravovat dle přání a možností investora.
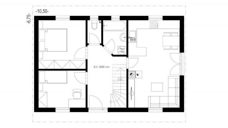
Všechny dřevostavby společnosti MS Haus s.r.o. lze dispozičně dále upravovat dle požadavku klienta. Příkladem je posunutí stěn, posunutí, či přesunutí okna či dveří na jinou fasádu. Další zajímavou možností je změna sklonu nebo rovnou změna tvaru a typu střechy, či krytiny. Dále je možné zlepšení tepelně technických vlastností dřevostaveb až na hodnoty doporučené pro pasivní domy. Změna druhu vytápění je také samozřejmostí!
Cena dřevostavby na klíč u domů MS 03a, MS 03b, MS 03c, MS 05 a MS 06b obsahuje přízemí na klíč a přípravu pro pozdější vestavbu podkroví (zesílené stropy, upravené vazníky, štítová okna, rezerva v rozvaděči E.I., příprava sanitární instalace). Rozsah a vlastní dodávku stavby lze měnit na přání zákazníka.












Čerstvé novinky ze světa dřevostaveb