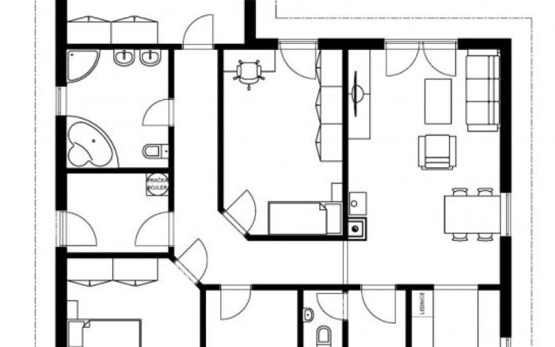
Dřevostavba na klíč MS 07 je slušně vybavený bungalov s dispozičním řešením 5+1. Dispoziční řešení lze upravit dle přání klienta, např. zvětšit koupelnu na úkor šatny nebo dílny, nahradit jeden pokoj garáží, nebo zvětšit obývací pokoj a zmenšit pokoj sousední. atd. Dle potřeby staveniště je možno, stejně jako u všech ostatních námi nabízených dřevostaveb, dům zrcadlově otočit.
EKONOMY MS 07 - dřevostavba na klíč
Dodavatel:
MS HAUS s.r.o.
Parametry projektu EKONOMY MS 07 - dřevostavba na klíč
| Společnost | MS HAUS s.r.o. |
| Charakteristika domu | samostatný |
| Počet podlaží | Jednopodlažní |
| Generačnost | Jednogenerační |
| Konstrukční systém | Panelový |
| Podlahová plocha (užitná) | 124 m2 |
| Zastavěná plocha | 149 m2 |
| Tvar střechy | valbová |
| Dispozice | 5+kk/5+1 |
| Cena hrubé stavby (vč. DPH) | 2 306 210,00 Kč |
| Cena dřevostavby na klíč (vč. DPH) | 4 772 385,00 Kč |












Čerstvé novinky ze světa dřevostaveb