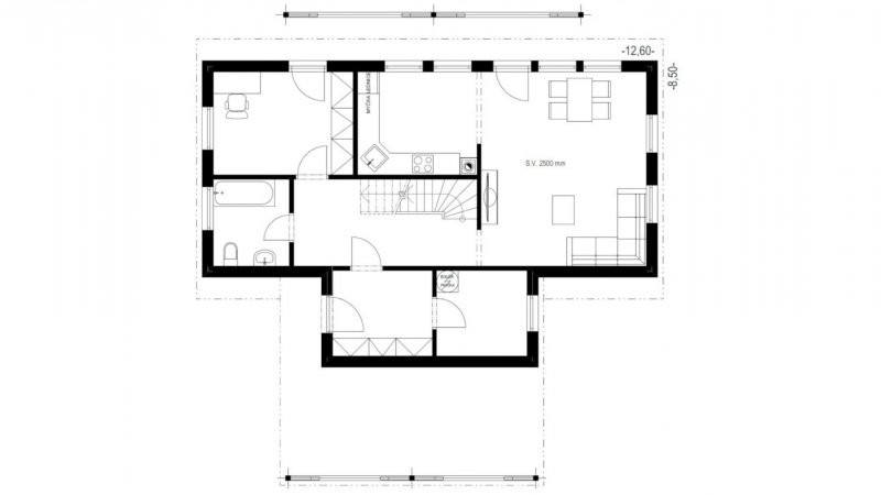
Rodinný dům s moderní architekturou o velikosti 5+kk. Zajímavě řešený obytný prostor s integrovanou kuchyní a jídelnou. Dvě koupelny, šatna a kryté stání doplňuji komfort domu. Zajímavým řešením je využití vyšší výšky dětského pokoje pro spaní ve druhé úrovni. Pokud by tento pokoj byl využit k jiným účelům lze takto vytvořený prostor využít jako např. další úložný prostor.
Přesah střechy a balkon na jižní straně přirozeným způsobem zastiňují obytné prostory a chrání je před přehřátím. Vnější povrchy jsou navrženy v dřevěném, svisle orientovaném obložení v kvalitě dle volby zákazníka. Architekturu doplňuje venkovní komín.










Čerstvé novinky ze světa dřevostaveb