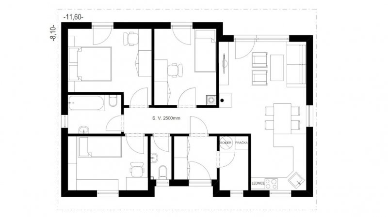
Nízkoenergetická dřevostavba na klíč pro čtyřčlennou rodinu. Jednoduché linie a prakticky uspořádaný interiér charakterizují právě tuto dřevostavbu.
EKONOMY MS 09 - dřevostavba na klíč
Dodavatel:
MS HAUS s.r.o.
Parametry projektu EKONOMY MS 09 - dřevostavba na klíč
| Společnost | MS HAUS s.r.o. |
| Charakteristika domu | samostatný |
| Počet podlaží | Jednopodlažní |
| Generačnost | Jednogenerační |
| Konstrukční systém | Panelový |
| Podlahová plocha (užitná) | 73 m2 |
| Zastavěná plocha | 94 m2 |
| Tvar střechy | sedlová |
| Dispozice | 4+kk/4+1 |
| Cena hrubé stavby (vč. DPH) | 1 804 120,00 Kč |
| Cena dřevostavby na klíč (vč. DPH) | 3 611 345,00 Kč |








Čerstvé novinky ze světa dřevostaveb