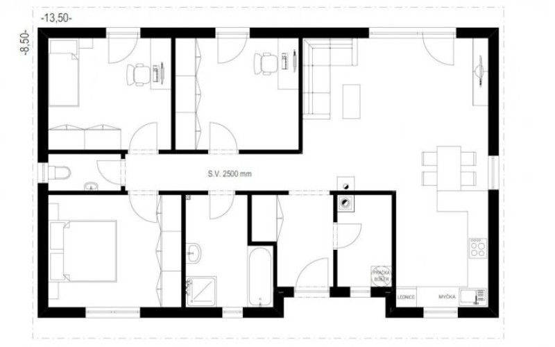
Rodinný dům, který vznikl jako odpověď na poptávku klientů po příjemném, jednoduchém a především cenově zajímavém domku bez větších kompromisů. Vnitřní dispozice 4+1 je funkční a promyšlená, přesto nechává prostor Vaší individualitě a fantazii.
Stavba jednoduchého obdélníkového půdorysu a s klasickou sedlovou střechou malého sklonu je vhodná do jakéhokoli prostředí. Vyniká moderním prostorným interiérem a dostatkem světla v obytné centrální části a těží z této dispozice i v otázce provozních nákladů spojených s chladným obdobím roku. Dům lze totiž snadno vytápět lokálním ohřevem umístěným příhodně v pomyslném středu stavby.
Stavba se základní dispozicí, zahrnující centrální obytnou místnost s jídelní částí propojenou s kuchyňským koutem nebo uzavřenou kuchyní. I větší rodině bude jistě dostačovat prostor ve třech dalších pokojích v blízkosti členěné koupelny. WC má vchod ze vstupní chodby a je tak odděleno od obytné části domu. Komfortním prvkem je technická místnost, velice prakticky spojená se vstupním prostorem - tam lze vhodně umístit kočárek, jízdní kolo atd. Zmenšením technické místnosti na polovinu může vzniknout další funkční prostor, který lze využít připojením ke kuchyni jako spíž. Nebo byste raději místo obou místností měli kuchyň opravdu "královských rozměrů"? Vy sami jste architekty nového bydlení, konečné rozhodnutí je vždy jen na Vás.









Čerstvé novinky ze světa dřevostaveb