Dřevostavba na klíč MS 15 Ekonomy, která vznikla jako odpověď na poptávku klientů po příjemném, relativně jednoduchém a především cenově zajímavém domku pro velkou rodinu s bohatým technickým zázemím a krytým venkovním posezením, které je součástí domu.
Dřevostavba je navržena jako bungalow s valbovou střechou o sklonu 25°. Při návrhu bylo dbáno a velkou variabilitu, kterou dům svými rozměry nabízí, což podporuje naši myšlenku o tom, že každou dřevostavba z naší produkce si zákazník může dle svých představ upravit tak, aby vyhovovala právě jemu. Dále byl kladen důraz na to, aby v dřevostavbě bylo vše, co je potřebné pro velice komfortní bydlení čtyřčlenné rodiny a s tím spojené technické zázemí.
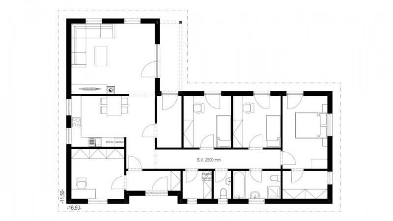
V základní variantě této dřevostavby jsou dva dětské pokoje, ložnice s připojenou šatnou bezprostředně propojeny se zahradou, dále pracovna, obytná kuchyň s jídelnou komunikačně propojená se spíží a přístupem ven a neposlední řadě obývací pokoj. Dále je v domě samozřejmě WC, technická místnost, koupelna a zádveří. Vnitřní dispozici domu lze však dle přání klienta upravovat.







Čerstvé novinky ze světa dřevostaveb