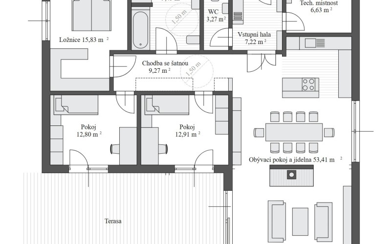
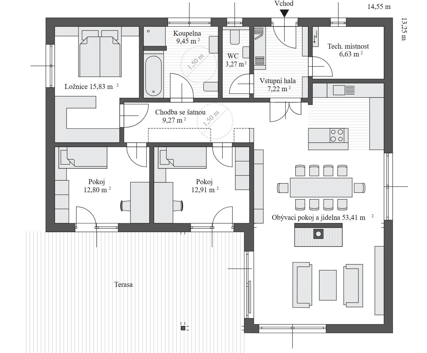
Jak už samotný název napovídá, tento přízemní dům dokonale spojuje požadavky na praktičnost s estetikou a elegancí. Senzační design, vysoké stropy, prostorné chodby a čisté linie vám dodají pocit volnosti.
Elegance 130 v sobě dokonale kombinuje moderní design, funkčnost a nadčasovou eleganci. Je ideální volbou pro rodiny, které hledají pohodlné a reprezentativní bydlení.
Tento bungalov je ideální volbou pro ty, kdo ocení moderní styl, vzdušnost interiéru a dostatek prostoru jak uvnitř, tak venku. Velkorysé místnosti světlý interiér a různé typy střech dodávají domu výjimečnost.
Dům Elegance 130 splní nejen vaše nároky na praktické bydlení, ale zároveň vás okouzlí svým elegantním vzhledem a promyšlenými detaily. Dá se také upravit podle vašich konkrétních požadavků. Dispozice domu je bezbariérová.




Čerstvé novinky ze světa dřevostaveb