Exclusive 190 - dřevostavba na klíč

Dodavatel: DOMYRIO s.r.o.

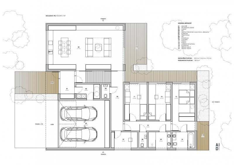
Parametry projektu Exclusive 190 - dřevostavba na klíč

Společnost DOMYRIO s.r.o.
Charakteristika domu samostatný
Počet podlaží Jednopodlažní
Generačnost Jednogenerační
Konstrukční systém Panelový
Podlahová plocha (užitná) 190 m2
Zastavěná plocha 223 m2
Dispozice 5+kk/5+1
ZOBRAZIT DALŠÍ PROJEKTY FIRMY

Popis projektu Exclusive 190 - dřevostavba na klíč

Prostorný moderní dům

V této dispozici si každý najde to svoje. Dvojgaráž se samostatným vstupem do domů, obývací pokoj s výhledy do zahrady a celkové propojení ložnic a obytné části při zachování soukromí rodiny.

Zeptejte se na tento produkt

Sdílet obsah

Partneři projektu

news arrowČerstvé novinky ze světa dřevostaveb

Přihlaste se k odběru zadáním e-mailu