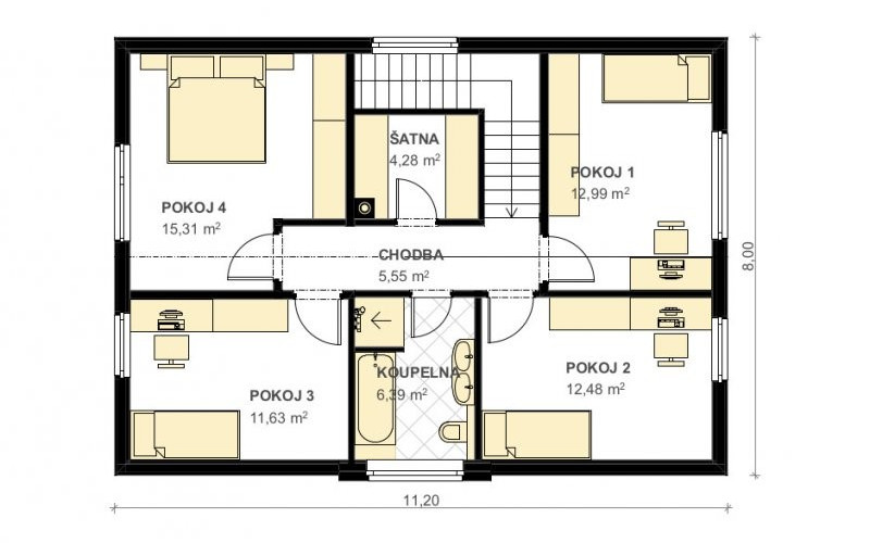
Dům z dispozicí 6+kk je ideální pro velkou rodinu. V patře najdete 3 pokoje a ložnici. Šatna je společná a přístupná z chodby, stejně jakou koupelna s WC. V přízemí je připraven další pokoj s přilehlou koupelnou. Ze zádveří je přístupná chodba s technickou místností a schodiště oddělené od obytného prostoru. Obývací pokoj s kuchyní tvoří největší místnost domu a je zde přístup na terasu, která lemuje rohovou část domu.
Sedlová střecha s vikýřem se hodí do běžné zástavby a velká okna v přízemí prosvětlí každý z pokojů.





Čerstvé novinky ze světa dřevostaveb