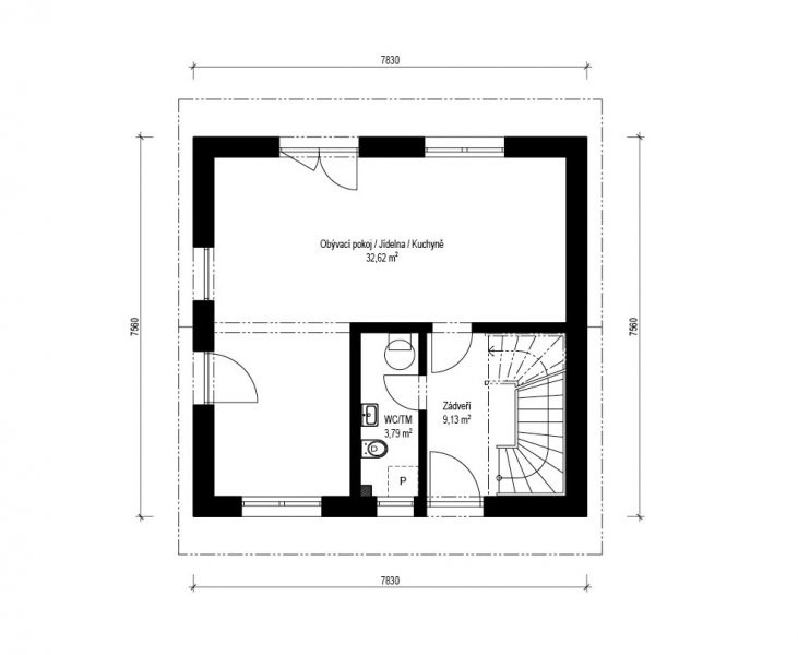
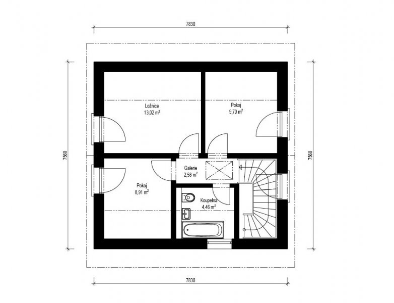
Patrový rodinný dům Festivo 1-84 zabírá zastavěnou plochu pouhých 59 m2. Přesto nabídne užitnou plochu přes 84 m2, dispozici 4+KK se třemi ložnicemi a koupelnou v patře a obývacím pokojem s kuchyňským koutem v přízemí, kde je ještě místo pro technickou místností s WC.
Festivo 1-84 - dřevostavba na klíč
Dodavatel:
Haas Fertigbau s.r.o.
Parametry projektu Festivo 1-84 - dřevostavba na klíč
| Společnost | Haas Fertigbau s.r.o. |
| Web | www.haas-fertigbau.cz/drevostavby/easy-1-23 |
| Charakteristika domu | samostatný |
| Počet podlaží | Vícepodlažní |
| Generačnost | Jednogenerační |
| Konstrukční systém | Panelový |
| Podlahová plocha (užitná) | 84,21 m2 |
| Zastavěná plocha | 59,19 m2 |
| Dispozice | 4+kk/4+1 |
| Cena hrubé stavby (vč. DPH) | 3 190 000,00 Kč |
| Cena dřevostavby na klíč (vč. DPH) | 5 368 000,00 Kč |











Čerstvé novinky ze světa dřevostaveb