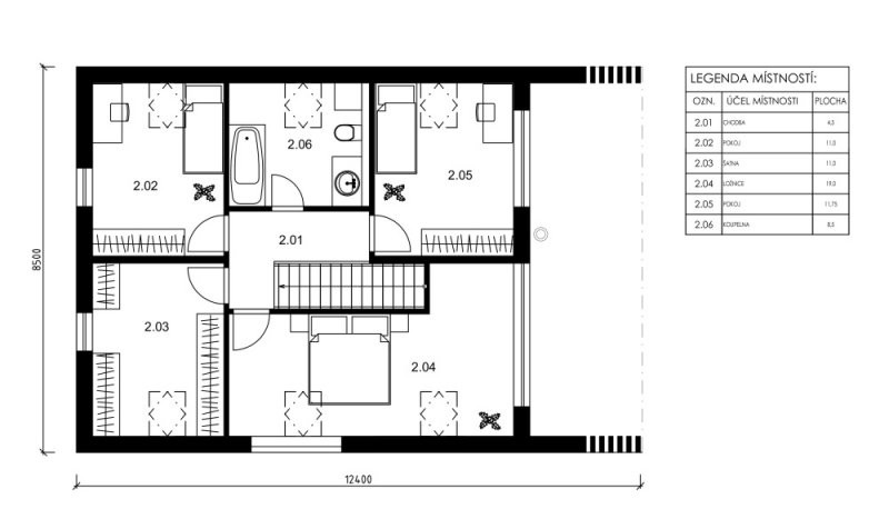
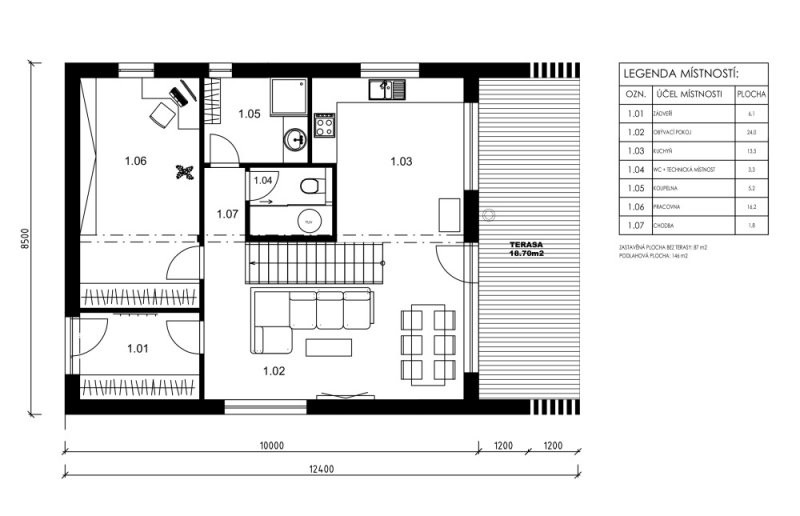
Dům FRESH 02 spojuje tradiční bydlení s moderními technologiemi. Prosklený štít si říká o umístění do přírody, kde je možné užívat si krásných výhledů z kuchyně, obývacího pokoje a dvou ložnic v patře. Kromě těchto místností se v domě nachází další dva pokoje, pracovna, dvě koupelny a oddělené wc v kombinaci s technickou místností. Vyhovovat bude moderní rodině, která preferuje oddělení ložnic od společenského dění. Tento dům svěžího vzhledu dokazuje, že i na menší prostor se pohodlně vejde vše, co potřebujeme ke spokojenému a úspornému bydlení.Dům FRESH 02 spojuje tradiční bydlení s moderními technologiemi. Prosklený štít si říká o umístění do přírody, kde je možné užívat si krásných výhledů z kuchyně, obývacího pokoje a dvou ložnic v patře. Kromě těchto místností se v domě nachází další dva pokoje, pracovna, dvě koupelny a oddělené wc v kombinaci s technickou místností. Vyhovovat bude moderní rodině, která preferuje oddělení ložnic od společenského dění. Tento dům svěžího vzhledu dokazuje, že i na menší prostor se pohodlně vejde vše, co potřebujeme ke spokojenému a úspornému bydlení.
FRESH 02 - dřevostavba na klíč
Dodavatel:
GOOPAN
Parametry projektu FRESH 02 - dřevostavba na klíč
| Společnost | GOOPAN |
| Charakteristika domu | samostatný |
| Počet podlaží | Vícepodlažní |
| Generačnost | Jednogenerační |
| Konstrukční systém | Panelový |
| Podlahová plocha (užitná) | 146 m2 |
| Dispozice | Větší jak 5+1 |






Čerstvé novinky ze světa dřevostaveb