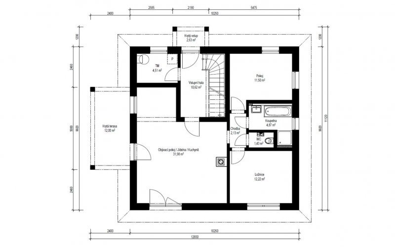
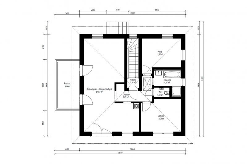
Dvougenerační vila Genera 1-155 nabízí dvě bytové jednotky v jednom domě. V přízemí je obývací pokoj s kuchyňským koutem a jídelnou s přímým vstupem na krytou terasu. K tomu 2 pokoje, koupelna, samostatné WC a technická místnost. V patře je pak zvětšený obývací pokoj s kuchyňským koutem se vstupem na balkon/terasu a také 2 ložnice s koupelnou a WC.
Genera 1-155
Dodavatel:
Haas Fertigbau s.r.o.
Parametry projektu Genera 1-155
| Společnost | Haas Fertigbau s.r.o. |
| Charakteristika domu | samostatný |
| Počet podlaží | Vícepodlažní |
| Generačnost | Vícegenerační |
| Konstrukční systém | Panelový |
| Podlahová plocha (užitná) | 154,19 m2 |
| Zastavěná plocha | 116,31 m2 |
| Dispozice | Větší jak 5+1 |
| Cena hrubé stavby (vč. DPH) | 5 440 000,00 Kč |
| Cena dřevostavby na klíč (vč. DPH) | 8 656 000,00 Kč |












Čerstvé novinky ze světa dřevostaveb